mar-sab 900 - 1300 / 1430 - 1900
lunedì: SU APPUNTAMENTO

Rivahouse Agenzia Immobiliare Riva del Garda Arco Torbole sul Garda Trentino Rivahouse Agenzia Immobiliare Riva del Garda Arco Torbole sul Garda Trentino

Dettagli immobile

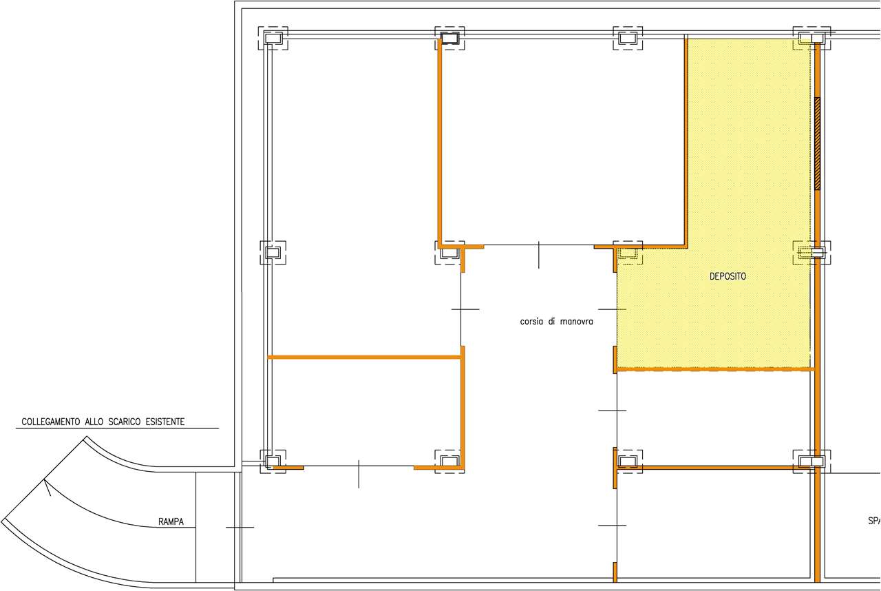
MODERNO DEPOSITO DI CIRCA 200MQ

Riva del Garda

900,00

Descrizione

In zona strategica e di facile accesso, completamente ristrutturato a nuovo, magazzino di circa mq 200. Ubicato al piano interrato, con portone basculante automatizzato e con apertura a codice, e già predisposto per sistema di allarme! Altezza m 2,80, con rampa di accesso molto comoda. Utilizzabile come deposito/magazzino/garage. Maggiori informazioni allo 0464559993.

Planimetrie

Caratteristiche

Codice annuncio

AFF. DEPOSITO 4

Classe energetica

VA

Metri quadrati

200

locali

1

Spese cond. Annue

30,00

Torna all'elenco