Tue-Sat 900 - 1300 / 1430 - 1900
Monday: BY APPOINTMENT

Rivahouse Real Estate Agency Riva del Garda Arco Torbole sul Garda Trentino Rivahouse Real Estate Agency Riva del Garda Arco Torbole sul Garda Trentino

Property details

STYLISH COMMERCIAL SPACE

Riva del Garda

Confidential negotiation

Description

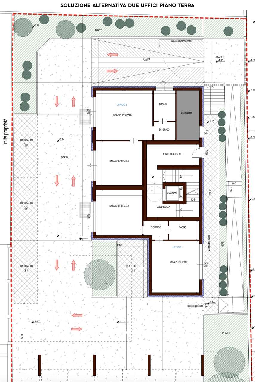
Located in an area with high vehicle and pedestrian traffic, surrounded by numerous residences, commercial establishments, and gastronomic attractions, we offer a spacious property situated on the underground ground floor of an elegant, recently built building, just steps from the city center. Its strategic location, combined with the area's high population density and steady tourist flow, makes this an ideal spot to launch or expand any commercial activity. The space features an independent entrance directly from the main street, ensuring excellent accessibility. It is perfectly suited for retail stores, showrooms, offices, food service businesses, or public services. To add even more value, several reserved parking spaces are available, a significant advantage for customers or staff. This is a unique opportunity to secure a premium property in one of the city’s most dynamic and attractive areas. It is also possible to divide the space into two separate offices. For more information and to schedule a visit, contact us today!

Floor plans

Features

insertion code

RIF. 55 PT

Energy rating

A+

squere meters

115

rooms

4

Torna all'elenco